
咨詢熱線15725685099
一、CNC加工中心硬規介紹 早期的普通CNC加工中心的導軌就是硬軌,硬軌是經過熱處理后,經過磨床加工在經過刮研后得到得,生產周期長,加工技術難度高,現在為了降低刮研工作量一

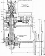
主軸松拉刀是數控加工中心的基本功能,無論型號如何其結構基本上大同小異,本文主要介紹數控加工中心主軸松拉刀的基本結構及工作原理

一般對于大行程加工中心,可做成立式,也可做成臥式,如行程1100*600*600的加工中心,他們有什么區別呢?在加工工件層面來看,大型立式加工中心和臥式加工中心有些相似,但是在結

加工中心工件坐標系是編程人員在編寫程序時,在工件上建立的坐標系,其原點即為工件原點(也稱工件零點或編程原點)。理論上是由編程人員任意設定的,但實際上,它是編程人員

任何的機床在使用過程中,會或多或少的出現一些的問題,數控加工中心也不例外,那具體的有哪些呢? 數控加工中心機臺部份漏氣是壓力控制開關耐圧不夠造成的,對于老的機器壞了
